2-к квартира, 58 м², 2/10 эт.

Саратовская область, Саратов, Лунная улица, 32к1

6 123 000 руб.

105 569 руб./м²
2-к квартира, 58 м², 2/10 эт.

Описание Объект №29517

КВАРТИРА ПРОДАЕТСЯ ПО ОКОНЧАТЕЛЬНОЙ ЦЕНЕ БЕЗ КОМИССИИ!

🌟 2-комнатная квартира в новом доме – Саратов, ул. Лунная, д. 32, корп. 1
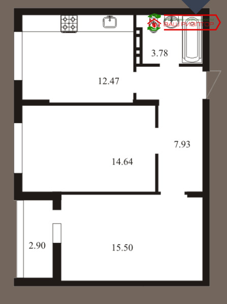
Продаётся 2-комнатная квартира 57,22 м² на 2 этаже 10-этажного дома.
ЖК сдан в 2024 году – можно сразу оформлять сделку и заезжать!




🏠 О доме
Современный монолитно-кирпичный комплекс из двух домов.
Надёжное строительство, отличная звукоизоляция и комфортный микроклимат.
Во дворе – парковка вокруг дома, детская площадка и благоустроенная территория.

🛋 О квартире
– Без отделки – возможность сделать ремонт под себя
– Балкон, окна выходят на тихую улицу
– Удобная планировка, светлые комнаты
– Просторная кухня, оптимальная площадь – 57,22 м²

🏫 Инфраструктура
Район с развитой инфраструктурой:
– школы и детские сады
– два бассейна
– крупный торговый комплекс
– зелёная зона для прогулок
– остановки общественного транспорта рядом с домом

💰 Условия покупки
– Подходит под семейную ипотеку 6%

– ✅ Гарантируем безопасность сделки
– Рассмотрим покупателей со своим непроданным жильём

📞 Звоните прямо сейчас, чтобы записаться на просмотр!
Квартира в новом доме, в сданном комплексе – отличное решение для семьи, ценящей комфорт и удобство локации.


Покупка новостройки с нами — бесплатно и прозрачно.
Комиссию платит застройщик, для вас — 0 ₽.
Мы рассказываем не только о плюсах, но и о реальных нюансах и возможных минусах, а также сравниваем разных застройщиков, чего не сделает отдел продаж.
Мы работаем с разными проектами и помогаем выбрать лучшее решение, а не навязываем один объект


📞 Звоните или пишите — подберём лучший вариант без переплат и сюрпризов!

  • Материал дома :

  • Лифт :

  • Мусоропровод :

  • Этаж :

  • Кол-во комнат :

  • Жилая площадь :

  • Балкон :

  • Отопление :

  • Монолитно-кирпичный

  • Нет лифта

  • Нет

  • 2

  • 2

  • 30 м²

  • Лоджия

  • Центральное

  • Год постройки :

  • Парковка :

  • Охрана/Консьерж :

  • Этажность :

  • Площадь :

  • Тип :

  • Ремонт :

  • 2024

  • Наземная

  • Нет

  • 10

  • 58 м²

  • Квартира

  • Черновая

Карта Саратов, Лунная улица, 32к1

Похожая недвижимость

3-к квартира, 78,6 м², 2/17 эт.
  • Продажа
6 700 000 руб.

Квартира

3-к квартира, 78,6 м², 2/17 эт.

Саратов, Гвардейская улица, 47/53

1-к квартира, 36,9 м², 10/17 эт.
  • Продажа
5 600 000 руб.

Квартира

1-к квартира, 36,9 м², 10/17 эт.

Саратов, Аптечная улица, 30

1-к квартира, 40 м², 21/23 эт.
  • Продажа
5 900 000 руб.

Квартира

1-к квартира, 40 м², 21/23 эт.

Саратов, Лунная улица, 30А

1-к квартира, 42 м², 18/23 эт.
  • Продажа
6 300 000 руб.

Квартира

1-к квартира, 42 м², 18/23 эт.

Саратов, Лунная улица, 30

2-к квартира, 56 м², 2/19 эт.
  • Продажа
6 950 000 руб.

Квартира

2-к квартира, 56 м², 2/19 эт.

Саратов, Алексеевская улица, 7А

1-к квартира, 36,8 м², 3/10 эт.
  • Продажа
6 300 000 руб.

Квартира

1-к квартира, 36,8 м², 3/10 эт.

Саратов, улица имени Михаила Булгакова, 8

3-к квартира, 79,1 м², 3/10 эт.
  • Продажа
6 400 000 руб.

Квартира

3-к квартира, 79,1 м², 3/10 эт.

Саратов, улица имени С.Ф. Тархова, 40